
CD90TAR series meter is for cold water, inferential, single-jet type, super dry pattern, i.e. dry dial, magnetic drive type, with the lower magnet fitted directly to the fan wheel which is the only moving part submerged in water, therefore the meter is ideally suited for operating with hard and scaling water with sand in suspension without the rapid deterioration of gears which in traditional designs are submerged in water.
* Magnetic shield structure, with which the water meter can not be influenced by outside magnetic fields.
* Long service life
WORKING CONDITION:
*The max. admissible water pressure:1.6MPa(16bar)
*Water Temp.: Up to 50℃
Maximum permissible error:
Between qt (included) and qs is ±2%;
Between qmin and qt (excluded) is ±5%.
NOTE: The technical data conform to ISO4064 standard, class B.
FLOW-ERROR CURVE

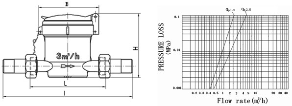
SPECIFICATION AND OVERALL DIMENSIONS
|
Description |
Unit |
Hydraulic data and dimensions |
|
Nominal size |
mm |
15 |
20 |
|
inch |
1/2 |
3/4 |
|
Overload flow-rate (qs) |
m3/h |
3 |
5 |
|
Permanent flow-rate (qp) |
m3/h |
1.5 |
2.5 |
|
Transitional flow-rate (qt) |
m3/h |
0.12 |
0.2 |
|
Minimum flow-rate (qmin) |
m3/h |
0.03 |
0.05 |
|
Max. reading |
m3 |
99999.9999 |
99999.9999 |
|
Min. reading |
m3 |
0.00005 |
0.00005 |
|
Max. working pressure |
MPa |
1.6 |
1.6 |
|
ΔP at the qs |
MPa |
≤0.1 |
≤0.1 |
|
L |
mm |
110 |
115 |
|
I |
mm |
190 |
216 |
|
H |
mm |
94.5 |
94.5 |
|
B |
mm |
88 |
88 | OVERALL DIMENSIONS PRESSURE LOSS CURVE
 |